Proyectos

En Yojo concebimos cada proyecto turístico como una obra única. Desde hoteles boutique hasta complejos turísticos de gran escala, trabajamos con una visión integral: diseño distintivo, construcción precisa y sustentabilidad como valor agregado.

Nuestra experiencia incluye arquitectura para hoteles en Buenos Aires y desarrollos en entornos naturales, siempre con el mismo objetivo: crear espacios que generen experiencias memorables para los huéspedes y resultados rápidos para los inversores.

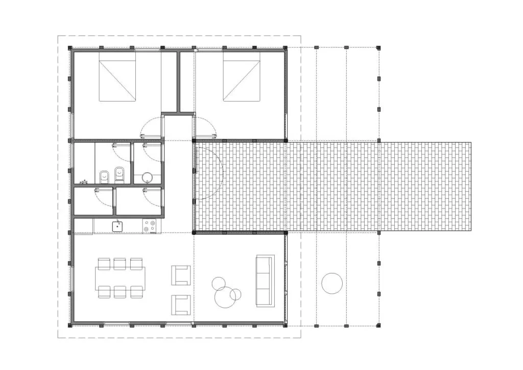
Hotel Termal Dolores

Un proyecto de ampliación de 880 m² en solo 6 meses, ejecutado sin interrumpir la operación del complejo. Arquitectura eficiente, diseño cuidado y construcción de alto nivel en un destino termal en expansión.

Son doce departamentos de 50 m², cada uno con dos cuartos, vestidor, baño y galería. Los volúmenes se van escalonando entre sí para captar mejor el sol y las vistas. En el exterior se combinan hormigón armado visto, baldosones de plaza, madera natural y chapa gris grafito, logrando una presencia sobria y elegante que dialoga con el entorno construido. En el interior, el protagonismo lo tienen el blanco y la madera, una dupla cálida y al mismo tiempo resistente, pensada para soportar el uso intensivo.

Otros proyectos destacados

Complejo hotelero en Dolores

Diseñado en torno a un amplio jardín central que articula la pileta y las áreas de recreación, este proyecto propone un conjunto hotelero de 14 unidades funcionales distribuidas en una barra en forma de U.
El diseño contempla también espacios complementarios como administración, baños públicos y un quincho semicubierto, pensados para enriquecer la experiencia de los visitantes.
Cada unidad, de aproximadamente 25 m², se accede de manera independiente desde una circulación central vinculada al entorno verde. 
Una propuesta eficiente que optimiza el uso del espacio y promueve el confort, ideal para escapadas en pareja o en familia.

Cabañas en Tandil

Ubicado en el entorno serrano de Tandil, este conjunto de cabañas fue diseñado especialmente para adultos mayores que valoran la tranquilidad, el confort y el contacto con lo natural.
El proyecto contempla 10 viviendas construidas con sistema woodframe, con superficies que van de los 90 a los 110 m². Cada unidad cuenta con dos dormitorios, cocina equipada y espacios comunes pensados para el disfrute cotidiano.
Además, el complejo incluye un área gourmet ideal para compartir momentos especiales y contemplar los atardeceres únicos que ofrece el paisaje tandilense. Una propuesta que combina diseño, funcionalidad y bienestar.

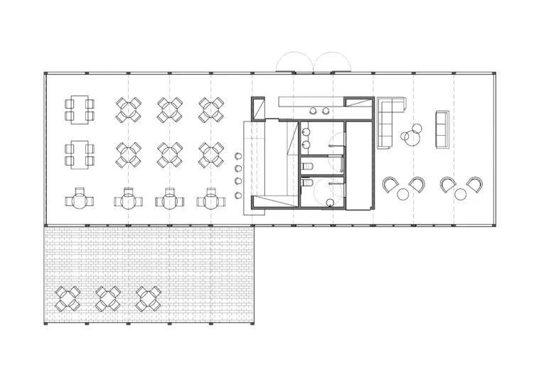
Complejo de cabañas

Pensado para un entorno turístico de estadías breves, este conjunto de cabañas propone una experiencia versátil y dinámica para familias de distintas conformaciones. El proyecto se compone de cuatro unidades con tipologías diferenciadas: dos desarrolladas en dúplex y dos en una sola planta, ofreciendo variedad en cada visita.
Los volúmenes, íntegramente revestidos en chapa blanca con detalles en madera natural, configuran una estética contemporánea y sobria. El conjunto se complementa con un sector más retirado que incluye pileta, solárium y parrillas, ideal para el descanso y la recreación.
Cada unidad cuenta con uno o dos dormitorios, cocina completa, baño y un espacio semicubierto privado, pensado para disfrutar del entorno desde la intimidad. La disposición, orientación y apertura de las cabañas garantizan privacidad entre unidades, al mismo tiempo que aprovechan las visuales del paisaje circundante. Una propuesta que combina diseño, funcionalidad y conexión con la naturaleza.

En Yojo, cada proyecto es una oportunidad para combinar visión de negocio, sensibilidad estética y velocidad de ejecución.